KOIVULAHTI, 4H+K+S+KHH+AT, 119.5 m²

Villintie 6


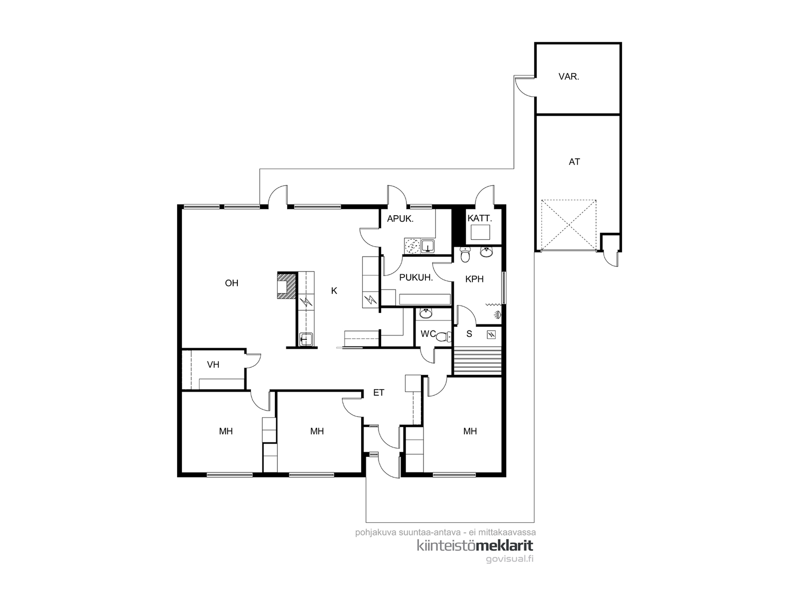
Kodikas ja lämminhenkinen omakotitalo, josta on pidetty hyvää huolta vuosien varrella. Alkuperäinen omistaja on asunut talossa alusta lähtien, mutta nyt on tullut aika siirtyä kevyempään asumiseen – sinun mahdollisuutesi tarttua tilaisuuteen! Tässä yhdessä tasossa olevassa kodissa on toimiva pohjaratkaisu: 4h + k + s + khh, yhteensä 119,5 m². Säilytystilat ovat kunnossa – entinen autotalli toimii nyt varastona ja öljysäiliöhuoneena, ja sen eteen on rakennettu kylmä autotalli. Kolme tilavaa makuuhuonetta tarjoavat riittävästi tilaa perheelle tai etätyöpisteelle. Olohuoneessa tunnelmaa luo kaunis takka. Keittiö sijaitsee olohuoneen vieressä ja tarjoaa runsaasti kaappitilaa sekä erillisen ruokakomeron. Terassille pääsee kätevästi sekä olohuoneesta että kodinhoitohuoneesta. Talossa on myös kaksi wc:tä – toinen kylpyhuoneessa ja toinen päämakuuhuoneen yhteydessä. Talo sijaitsee omalla, 1 014 m²:n tontilla, jota kehystää kaunis ja huolella hoidettu puutarha. Ensi keväänä ja kesänä on ilo seurata, mitä kaikkea puutarha tarjoaa – kukintaa, vehreyttä ja viihtyisyyttä. ************************************* Ett hemtrevligt och varmt egnahemshus som tagits väl om hand genom åren. Den ursprungliga ägaren har trivts här sedan starten – men nu är det dags att lämna plats för någon ny att skapa sitt hem. Detta enplanshus har en välplanerad layout: 4 rum + kök + bastu + grovkök, totalt 119,5 m². Det finns gott om förvaringsutrymme – det tidigare garaget används idag som förråd och oljetankrum, och framför det har man byggt ett kallgarage. Huset rymmer tre rymliga sovrum, perfekt för familjen eller för att skapa ett hemmakontor. I vardagsrummet sprider en vacker öppen spis en trivsam stämning. Köket ligger intill vardagsrummet och erbjuder gott om skåputrymme samt ett separat skafferi. Till terrassen kommer du både från vardagsrummet och från grovköket. Det finns två toaletter – en i badrummet och en smidigt placerad intill det största sovrummet. Den egna tomten är 1 014 m² stor. Den vårdade, grönskande trädgården som omger huset bjuder på blomsterprakt och lugn – det blir spännande att se vad våren och sommaren kommer att avslöja i denna vackra trädgård.


Katso kaikki kuvat


omakotitalo, 4H+K+S+KHH+AT, 119.5 m²

KOIVULAHTI, Villintie 6, 65100 Mustasaari

Velaton hinta: 112 000,00 €



Rakennus

Loppukatselmusvuosi: 1977
Käyttöönottovuosi: 1976
Rakennusmateriaali: puu, tiili Jeo-talo
Katto: Tyyppi: Harjakatto Kate: Peltikatto (alla kaksinkertainen huopakate) Katon kunto: Katto uusittu n. 20 v sitten
Asuintilojen pinta-ala: 119.5 m²
Lisätietoja pinta-alasta: Muu pinta-ala: autotalli ja varasto
Muut tilat: 37.5 m²
Energiatodistus: Ei lain edellyttämää energiatodistusta.
Lämmitysjärjestelmä: Kattila uusittu n. 2013, öljy
Huoneluku: 4H+K+S+KHH+AT
Keittiö: Varustus: jääkaappi, liesituuletin, astianpesukone. Liesi: keraaminen. Lattia: parketti. Seinät: tapetti
Pesutilat: Remontoitu 90-luvulla. Varustus: lattialämmitys, wc-istuin, suihku, peili, kylpyhuonekaapisto Seinät: kaakeli Lattia: laatta
Erillinen WC Varustus: Seinät: kaakeli Lattia: laatta Lukumäärä: 1
Kodinhoitohuone: Varustus: pesukoneliitäntä, pesuallas, lattialämmitys, lattiakaivo, pyykkikaapit. Lattia: laatta
Sauna: Oma sauna. Kiukaan tyyppi: sähkökiuas
Makuuhuoneet: Seinät: tapetti Lattia: muovi Lukumäärä: 3
Olohuone: Takka olohuoneessa Seinät: tapetti Lattia: parketti
Muut tilat: Eteinen, Tuulikaappi, Pannuhuone, Pukuhuone
Takka: takka
Muut rakennukset: autokatos, leikkimökki. Autokatos rakennettu kiinni autotalliin.
Tehdyt korjaukset: Katto uusittu n. 20 v sitten Öljykattila uusittu n. 2013 Sisäkatto uusittu ja parketti asennettu eteiseen, keittiöön ja olohuoneeseen 90-luvun alussa. Pesuhuone ja sauna uusittu 90-luvulla. Päätyjen salaojat uusittu ja asennettu sadevesijärjestelmä päätyihin. Autotallin kattokin uusittu harjakatoksi (alunperin tasakatto).
Muuta kauppaan kuuluvaa: Kaarisilta
Kauppaan ei kuulu: Mattoteline
Kunto: tyydyttävä

Kiinteistötiedot

Kiinteistötunnus: 499-436-2-185
Tyyppi: omakotitalo
Tontti: Tasamaatontti, 1014m², oma
Vesijohto kunnan
Viemäri: kunnan

Muita tietoja

Kaavoitus: Asemakaava
Perustus: Laattaperustus (ei paalutusta)
Palvelut: Koivulahden keskustaan 1,2 km Kauppa, pankki, kirkko ym.. Koulu: n. 1 km (ruotsinkielinen alakoulu). Päiväkoti: n. 350 m (ruotsinkielinen)
Vapautuu: sopimuksen mukaan
Lisätietoja: oma sauna, tie perille, kaapeli-tv, sähköliittymä siirtyy, vesi-, viemäri- ja kaapeli-tv (valokuitu tulossa)

Asumiskustannukset

Kiinteistövero: 250
Muut maksut / lisätietoa maksuista: Öljynkulutus n. 1 700 l/ v (öljylitran hinta 1,1 €/ l)

Hinta

Myyntihinta: 112 000,00 €

Yhteyshenkilön tiedot

Nimi: Lähteenmäki Maarit
Puhelinnumero: 0400-14 14 31
Sähköposti: maarit@kiinteistomeklarit.fi


Valokuvat



Lisätiedot

Lähteenmäki Maarit
Kiinteistönvälittäjä, LKV
0400-14 14 31
maarit@kiinteistomeklarit.fi